Μελέτη και Σχεδιασμός
Στη ΘΕΡΜΟΨΥΚΤΙΚΗ, δίνουμε ιδιαίτερη βαρύτητα στον λειτουργικό, εργονομικό και τεχνικά άρτιο σχεδιασμό του επαγγελματικού σας χώρου.
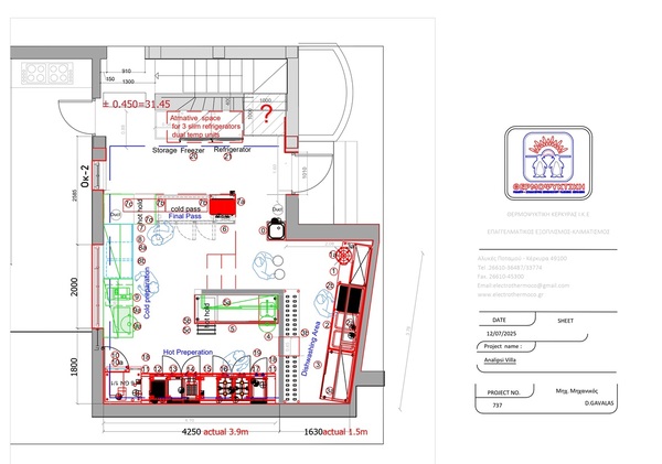
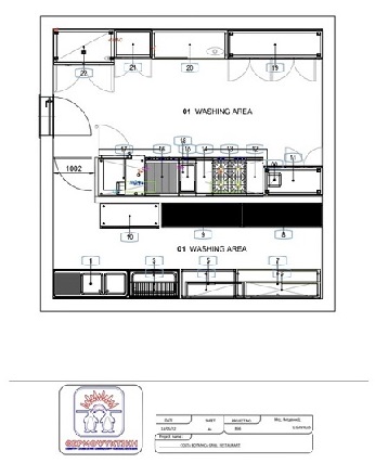
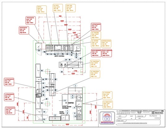
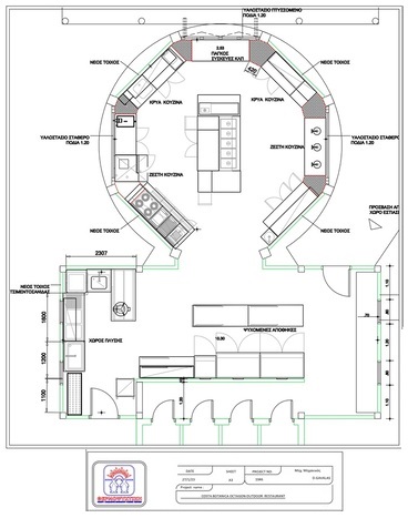
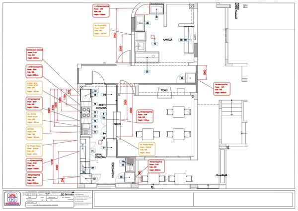
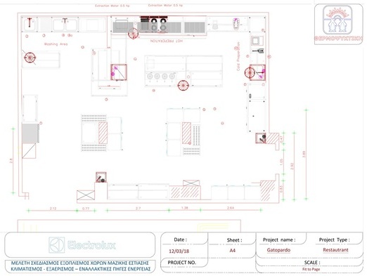
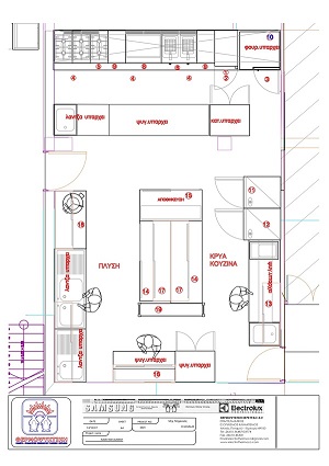
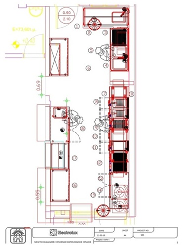
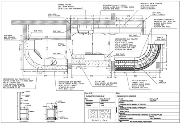
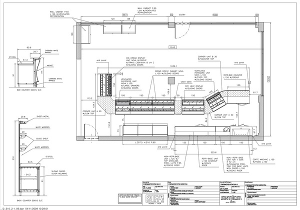
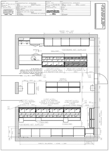
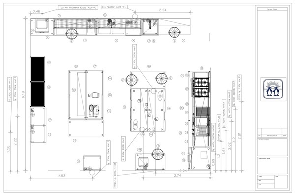
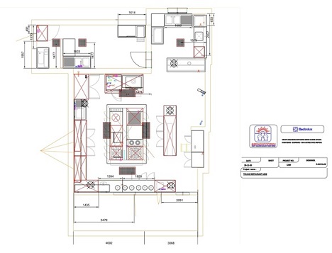
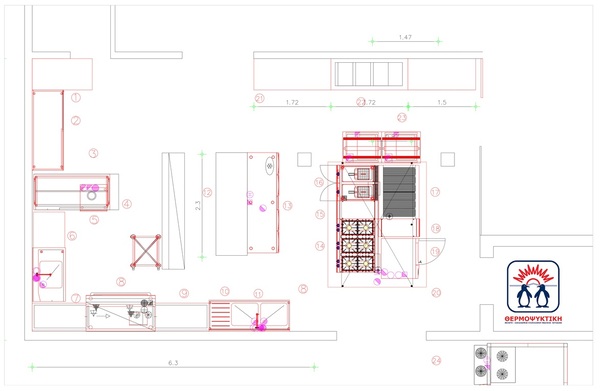
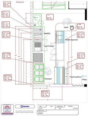
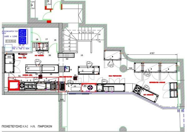
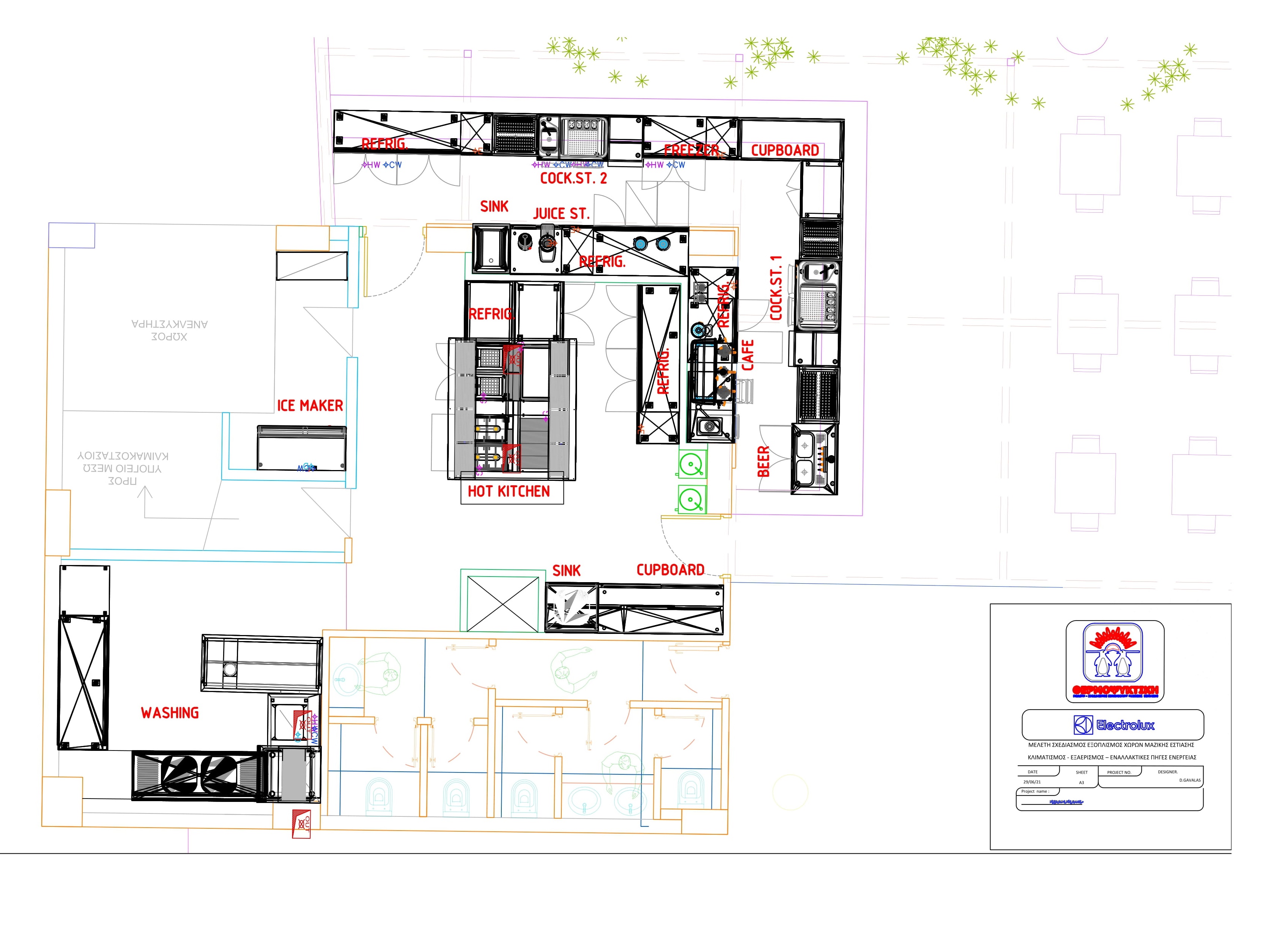
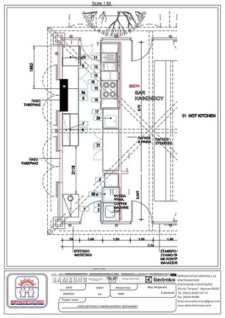
Δεν στηριζόμαστε σε πρόχειρες εκτιμήσεις – αλλά σε πραγματικά δεδομένα, βασισμένα σε επιτόπιες μετρήσεις, CAD διατάξεις και ρεαλιστικές προσομοιώσεις.
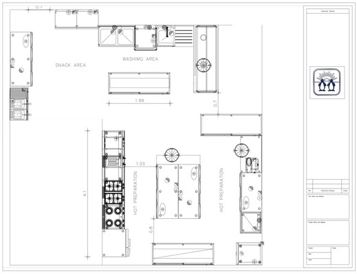
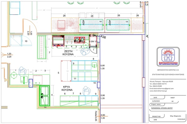
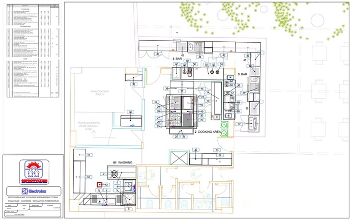
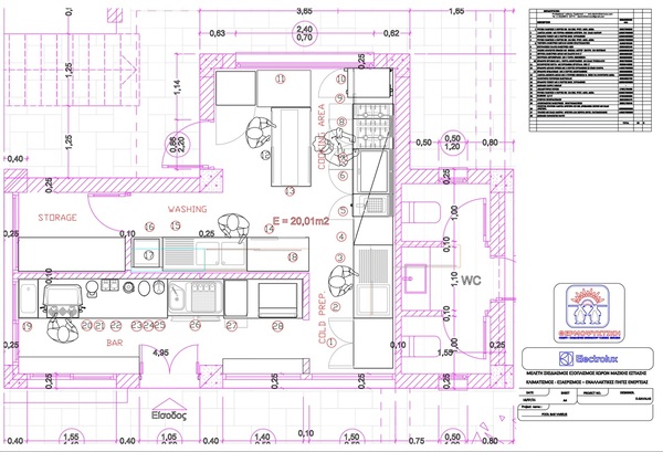
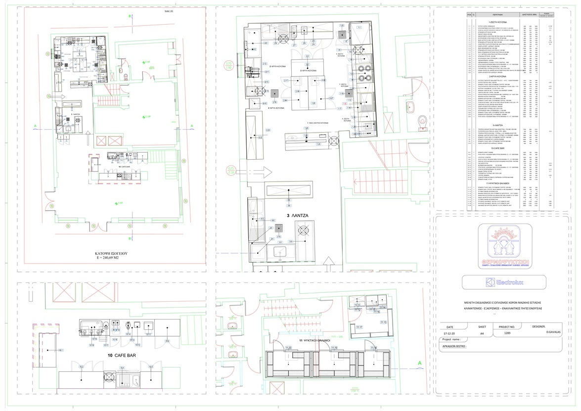
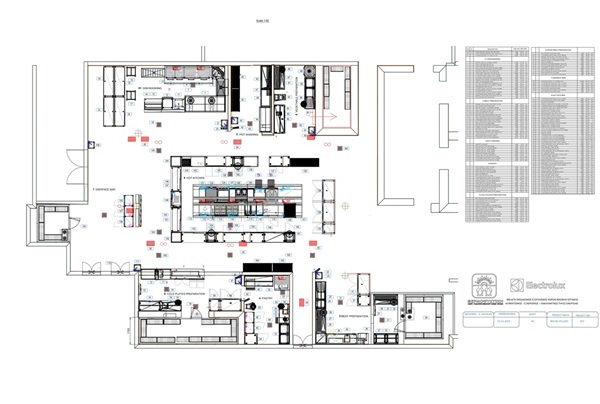
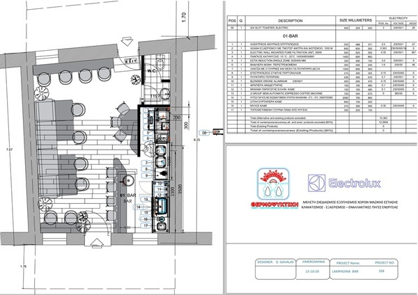
- Αποτύπωση χώρου σε πραγματική κλίμακα για να γνωρίζουμε με ακρίβεια πού και πώς θα λειτουργεί κάθε εξοπλισμός
- Διαμόρφωση εργονομικών διατάξεων με στόχο τη βέλτιστη ροή εργασίας και την εξοικονόμηση χρόνου
- 3D απεικονίσεις & φωτορεαλιστικά renders για πλήρη εικόνα πριν την εγκατάσταση
- Ανάλυση τεχνικών απαιτήσεων ψυκτικά, ηλεκτρολογικά, εξαερισμός, απορροφήσεις
- Συμμόρφωση με υγειονομικές προδιαγραφές και HACCP
Ο σωστός σχεδιασμός μειώνει λάθη, κόστη και καθυστερήσεις.
Η αποτύπωση σε κλίμακα εξασφαλίζει ότι κάθε λεπτομέρεια… λειτουργεί στην πράξη όχι μόνο στα χαρτιά.
Είτε πρόκειται για επαγγελματική κουζίνα, ξενοδοχειακή μονάδα ή βιομηχανικό ψυκτικό χώρο, είμαστε δίπλα σας από την αρχή.
Με τεχνογνωσία, εμπειρία και εξειδικευμένο σχεδιαστικό τμήμα, μετατρέπουμε τον χώρο σας σε ένα πλήρως αποδοτικό και λειτουργικό περιβάλλον εργασίας.
Βήμα-Βήμα Σχεδιασμός & Αποτύπωση Χώρου:
-
Επικοινωνία & Ραντεβού
Κατανόηση των αναγκών του χώρου και του είδους της επιχείρησης -
Επιτόπια Αυτοψία & Μέτρηση
Ακριβής αποτύπωση του φυσικού χώρου -
Δημιουργία CAD Σχεδίων & 3D Μοντέλων
Τρισδιάστατη προσομοίωση για οπτική κατανόηση της διάταξης -
Λειτουργική Ανάλυση & Τεχνικές Προβλέψεις
Ηλεκτρολογικά, ψυκτικά, εξαερισμοί, υγειονομικά -
Τελική Παρουσίαση & Έγκριση
Αναλυτική παρουσίαση και προσαρμογές αν χρειαστούν -
Εφαρμογή & Εγκατάσταση
Άμεση υλοποίηση με πιστότητα στη μελέτη και τεχνική αρτιότητα

































